Layout tòa M2 Eco Green Sài Gòn (Block E) là lựa chọn lý tưởng cho những ai tìm kiếm không gian sống hiện đại, vị trí chiến lược và khả năng sinh lời cao. Nhờ layout thiết kế thông minh cùng tầm nhìn mở hướng sông Sài Gòn – công viên Hương Tràm, tòa M2 chinh phục cả cư dân lẫn nhà đầu tư tại khu Nam Sài Gòn.
Tổng quan dự án Eco Green Sài Gòn và tòa M2
Eco Green Sài Gòn là khu phức hợp cao cấp quy mô gần 14 ha, tọa lạc trên mặt tiền đại lộ Nguyễn Văn Linh, liền kề Phú Mỹ Hưng – trung tâm phát triển năng động bậc nhất khu Nam Sài Gòn. Dự án được đầu tư đồng bộ với hệ thống tiện ích nổi bật như trung tâm thương mại, hồ bơi tràn, công viên Hương Tràm rộng 2 ha, khu vui chơi trẻ em, trường học quốc tế.

Toàn cảnh dự án Eco Green Sài Gòn quận 7
Tòa M2 thuộc dự án Eco Green Sài Gòn nằm tại vị trí trung tâm của khu phức hợp, sở hữu thiết kế hiện đại và tầm nhìn đẹp bậc nhất. Với layout dạng chữ thập (Cross shape) độc đáo, M2 mang lại khả năng đón gió và ánh sáng tự nhiên tối đa, đồng thời đảm bảo sự riêng tư và tiện nghi cho từng căn hộ.
Layout tổng thể tòa M2
Tòa M2 gồm Block E được bố trí hài hòa giữa không gian ở và cảnh quan. Từng chi tiết trong thiết kế của M2 được chú trọng nhằm mang lại trải nghiệm sống tiện nghi, thông thoáng và hiện đại cho cư dân.
Tòa nhà có tầm nhìn đa hướng:
- Hướng Bắc: View sông Sài Gòn – Quận 2.
- Hướng Nam: View công viên Hương Tràm 22ha.
- Hướng Đông: View Huỳnh Tấn Phát – sông Sài Gòn.
- Hướng Tây: Mặt tiền Nguyễn Văn Linh – view Quận 1.

Layout tổng thể tòa tháp M2 dự án Eco Green Sài Gòn
Với vị trí giao thoa 4 hướng đẹp, M2 mang đến giá trị sống và đầu tư cao, đặc biệt cho những khách hàng ưa chuộng tầm nhìn mở, thoáng đãng và môi trường sống xanh.
Layout chi tiết các căn hộ tòa M2
Căn hộ A1 (2 phòng ngủ)
- Diện tích tim tường: khoảng 73 m².
- Diện tích thông thủy: khoảng 70 m².

Layout căn A1 toà M2 dự án Eco Green Sài Gòn
Căn hộ A2 (2 phòng ngủ)
- Diện tích tim tường: khoảng 66 m².
- Diện tích thông thủy: khoảng 62 m².

Layout căn A2 toà M2 dự án Eco Green Sài Gòn
Căn hộ A3 (2 phòng ngủ)
- Diện tích tim tường: khoảng 70 m².
- Diện tích thông thủy: khoảng 65 m².

Layout căn A3 toà M2 dự án Eco Green Sài Gòn
Căn hộ A4 (2 phòng ngủ)
- Diện tích tim tường: khoảng 70 m².
- Diện tích thông thủy: khoảng 65 m².

Layout căn A4 toà M2 dự án Eco Green Sài Gòn
Căn hộ A5 (2 phòng ngủ)
- Diện tích tim tường: khoảng 66 m².
- Diện tích thông thủy: khoảng 62 m².

Layout căn A5 toà M2 dự án Eco Green Sài Gòn
Căn hộ A6 (2 phòng ngủ)
- Diện tích tim tường: khoảng 67 m².
- Diện tích thông thủy: khoảng 64 m².

Layout căn A6 toà M2 dự án Eco Green Sài Gòn
Căn hộ A7 (2 phòng ngủ)
- Diện tích tim tường: khoảng 72 m².
- Diện tích thông thủy: khoảng 66 m².

Layout căn A7 toà M2 dự án Eco Green Sài Gòn
Căn hộ A8 (2 phòng ngủ)
- Diện tích tim tường: khoảng 68 m².
- Diện tích thông thủy: khoảng 64 m².

Layout căn A8 toà M2 dự án Eco Green Sài Gòn
Căn hộ A9 (2 phòng ngủ)
- Diện tích tim tường: khoảng 44 m².
- Diện tích thông thủy: khoảng 42 m².

Layout căn A10 toà M2 dự án Eco Green Sài Gòn
Căn hộ A10 (2 phòng ngủ)
- Diện tích tim tường: khoảng 73 m².
- Diện tích thông thủy: khoảng 70 m².

Layout căn A8 toà M2 dự án Eco Green Sài Gòn
Căn hộ A11 (2 phòng ngủ)
- Diện tích tim tường: khoảng 66 m².
- Diện tích thông thủy: khoảng 62 m².

Layout căn A11 toà M2 dự án Eco Green Sài Gòn
Căn hộ A12 (2 phòng ngủ)
- Diện tích tim tường: khoảng 70 m².
- Diện tích thông thủy: khoảng 65 m².

Layout căn A12 toà M2 dự án Eco Green Sài Gòn
Căn hộ A13 (2 phòng ngủ)
- Diện tích tim tường: khoảng 70 m².
- Diện tích thông thủy: khoảng 65 m².

Layout căn A13 toà M2 dự án Eco Green Sài Gòn
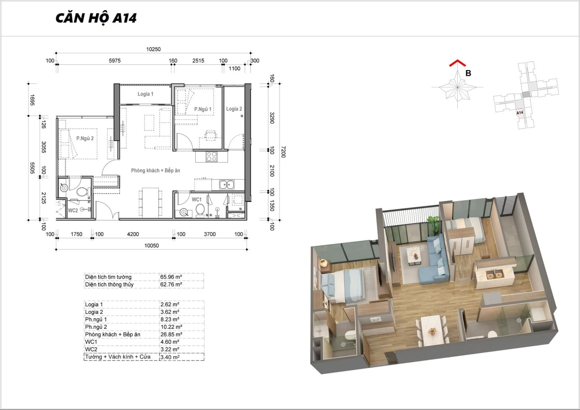
Căn hộ A14 (2 phòng ngủ)
- Diện tích tim tường: khoảng 66 m².
- Diện tích thông thủy: khoảng 62 m².

Layout căn A14 toà M2 dự án Eco Green Sài Gòn
Căn hộ A15 (2 phòng ngủ)
- Diện tích tim tường: khoảng 67 m².
- Diện tích thông thủy: khoảng 63 m².

Layout căn A15 toà M2 dự án Eco Green Sài Gòn
Căn hộ A16 (2 phòng ngủ)
- Diện tích tim tường: khoảng 72 m².
- Diện tích thông thủy: khoảng 66 m².

Layout căn A16 toà M2 dự án Eco Green Sài Gòn
Căn hộ A17 (2 phòng ngủ)
- Diện tích tim tường: khoảng 68 m².
- Diện tích thông thủy: khoảng 64 m².

Layout căn A17 toà M2 dự án Eco Green Sài Gòn
Căn hộ A18 (2 phòng ngủ)
- Diện tích tim tường: khoảng 44 m².
- Diện tích thông thủy: khoảng 42 m².

Layout căn A18 toà M2 dự án Eco Green Sài Gòn
Căn hộ B1 (2 phòng ngủ)
- Diện tích tim tường: khoảng 75 m².
- Diện tích thông thủy: khoảng 70 m².

Layout căn B1 toà M2 dự án Eco Green Sài Gòn
Căn hộ B2 (2 phòng ngủ)
- Diện tích tim tường: khoảng 75 m².
- Diện tích thông thủy: khoảng 70 m².

Layout căn B2 toà M2 dự án Eco Green Sài Gòn
Kết luận
Tòa M2 (Block E) tại Eco Green Sài Gòn sở hữu thiết kế layout thông minh, đa dạng diện tích, đáp ứng linh hoạt nhu cầu của các gia đình trẻ, chuyên gia nước ngoài và người mua để ở hoặc cho thuê. Với vị trí đắc địa ngay mặt tiền Nguyễn Văn Linh, tòa M2 không chỉ mang đến không gian sống xanh – tiện nghi – hiện đại, mà còn là lựa chọn đầu tư tiềm năng tại khu Nam Sài Gòn.
Nếu bạn muốn xem layout chi tiết từng căn, bảng giá mới nhất hoặc tư vấn chọn căn phù hợp hướng view và ngân sách, hãy liên hệ ViProperty – đơn vị tư vấn chuyên về Eco Green Sài Gòn để được hỗ trợ nhanh chóng và chuyên nghiệp.