Layout tòa HR3 Eco Green Sài Gòn thuộc dự án cao cấp tọa lạc tại vị trí đắc địa trên đại lộ Nguyễn Văn Linh, Quận 7 – trung tâm phát triển năng động bậc nhất khu Nam Sài Gòn. Với thiết kế hiện đại, bố trí mặt bằng thông minh và đa dạng loại hình căn hộ, tòa HR3 mang đến nhiều lựa chọn phù hợp cho cư dân tìm kiếm không gian sống tiện nghi, cũng như nhà đầu tư hướng tới giá trị bền vững lâu dài.
Layout tòa HR3 Eco Green Sài Gòn – Tổng quan dự án, thiết kế và mặt bằng chi tiết
Eco Green Sài Gòn là khu phức hợp cao cấp có quy mô gần 14 ha, được phát triển đồng bộ theo tiêu chuẩn đô thị xanh, tọa lạc trên mặt tiền đại lộ Nguyễn Văn Linh, liền kề khu đô thị Phú Mỹ Hưng. Dự án nổi bật nhờ hệ thống tiện ích phong phú như trung tâm thương mại, hồ bơi tràn, khu vui chơi, trường học quốc tế và đặc biệt là công viên Hương Tràm rộng 2 ha – lá phổi xanh của khu Nam Sài Gòn.
Trong tổng thể dự án, tòa HR3 là một trong những công trình được đầu tư kỹ lưỡng nhất. Với hàng trăm căn hộ được bố trí linh hoạt, chú trọng đón sáng tự nhiên, lưu thông không khí và tối ưu hóa không gian sinh hoạt. Đây là một trong những tòa nhà có view đẹp nhất dự án, với tầm nhìn mở ra sông Sài Gòn, công viên Hương Tràm và khu đô thị Phú Mỹ Hưng.

Toàn cảnh toà HR3 EcoGreenSaigon quận 7
Layout tổng thể tòa HR3 – Thiết kế tối ưu, đón sáng tự nhiên
Khác với các tòa HR1 hoặc HR2 có kết cấu đối xứng, tòa HR3 được thiết kế dạng chữ I mở rộng, vừa tạo sự riêng tư, vừa tối ưu thông gió và ánh sáng tự nhiên cho toàn bộ căn hộ.
Mỗi tầng của HR3 có khoảng 20–22 căn hộ, bố trí hợp lý quanh lõi thang máy và hành lang thông thoáng. Toàn bộ các căn đều có ít nhất một mặt thoáng, nhiều căn góc sở hữu hai đến ba mặt thoáng, giúp đón nắng và gió tự nhiên hiệu quả.
- Hướng Đông Nam: View sông Sài Gòn, khu Phú Mỹ Hưng và đại lộ Huỳnh Tấn Phát.
- Hướng Tây Bắc: View công viên Eco Park, khách sạn 6 sao Grand Hyatt và trung tâm thương mại lớn nhất khu Nam.
- Hướng Nam: View công viên Hương Tràm và hồ bơi nội khu.
Layout của HR3 được đánh giá cao nhờ tỷ lệ căn góc nhiều hơn so với các tòa khác, mang lại tầm nhìn rộng và không gian riêng tư vượt trội.

Layout tổng thể tòa tháp HR3
Layout chi tiết các căn hộ tòa HR3
Căn hộ A1 và A12 (2 phòng ngủ)
- Diện tích tim tường: khoảng 73 m².
- Diện tích thông thủy: khoảng 67 m².

Layout căn A1 và A12 toà hr3 dự án EcoGreen
Căn hộ A2 và A13 (2 phòng ngủ)
- Diện tích tim tường: khoảng 61 m².
- Diện tích thông thủy: khoảng 57 m².

Layout căn A2 VÀ A13 toà hr3 dự án EcoGreen
Căn hộ A3 và A14 (2 phòng ngủ)
- Diện tích tim tường: khoảng 69 m².
- Diện tích thông thủy: khoảng 66 m².

Layout căn A3 VÀ A14 tòa hr3 dự án EcoGreen
Căn hộ A4 và A15 (2 phòng ngủ)
- Diện tích tim tường: khoảng 71 m².
- Diện tích thông thủy: khoảng 67 m².

Layout căn A4 và A15 toà hr3 dự án EcoGreen
Layout căn A5 và A16 toà hr3 dự án EcoGreen
Căn hộ A5 và A16 (2 phòng ngủ)
- Diện tích tim tường: khoảng 65 m².
- Diện tích thông thủy: khoảng 61 m².

Layout căn A5 và A16 toà hr3 dự án EcoGreen
Căn hộ A6 và A17 (2 phòng ngủ)
- Diện tích tim tường: khoảng 70 m².
- Diện tích thông thủy: khoảng 67 m².

Layout căn A6 và A17 toà hr3 dự án EcoGreen
Căn hộ A7 và A18 (2 phòng ngủ)
- Diện tích tim tường: khoảng 77 m².
- Diện tích thông thủy: khoảng 73 m².

Layout căn A7 và A18 tòa hr3 dự án EcoGreen
Căn hộ A8 và A19 (2 phòng ngủ)
- Diện tích tim tường: khoảng 66 m².
- Diện tích thông thủy: khoảng 63 m².

Layout căn A8 và A19 tòa hr3 dự án EcoGreen
Căn hộ A9 và A20 (2 phòng ngủ)
- Diện tích tim tường: khoảng 65 m².
- Diện tích thông thủy: khoảng 62 m².

Layout căn A9 và A20 toà hr3 dự án EcoGreen
Căn hộ A10 và A21 (2 phòng ngủ)
- Diện tích tim tường: khoảng 64 m²
- Diện tích thông thủy: khoảng 60 m²

Layout căn A10 và A21 toà hr3 dự án EcoGreen
Căn hộ A11 và A22 (2 phòng ngủ)
- Diện tích tim tường: khoảng 59 m².
- Diện tích thông thủy: khoảng 57 m².

Layout căn A11 và A22 tòa hr3 dự án EcoGreen
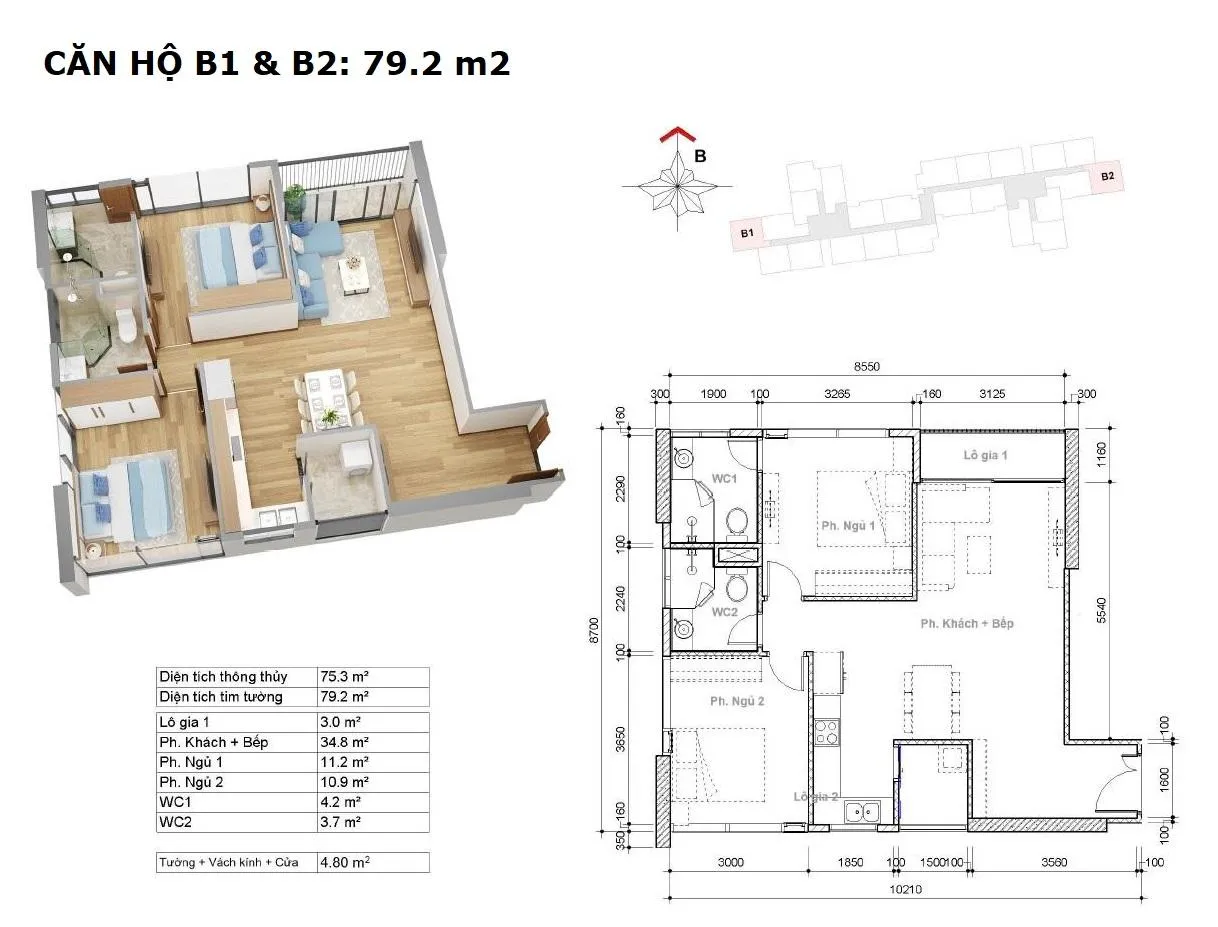
Căn hộ B1 và B2 (2 phòng ngủ)
- Diện tích tim tường: khoảng 79 m².
- Diện tích thông thủy: khoảng 75 m².

Layout căn B1 và B2 tòa hr3 dự án EcoGreen
Kết luận
Tòa HR3 tại Eco Green Sài Gòn sở hữu thiết kế hiện đại với hệ thống layout linh hoạt, không phân tách cứng giữa các loại căn hộ mà tối ưu không gian theo nhu cầu thực tế của cư dân. Nhờ đó, mỗi căn hộ tại HR3 đều mang đến trải nghiệm sống thoải mái, đón sáng và gió tự nhiên, phù hợp cho cả gia đình trẻ, chuyên gia làm việc tại khu Nam Sài Gòn, lẫn các nhà đầu tư đang tìm kiếm sản phẩm có giá trị bền vững.
Từ các căn hộ diện tích vừa phải đến loại rộng rãi hơn, HR3 đều được bố trí hợp lý, giúp tối ưu công năng và tầm nhìn — bao gồm view công viên Hương Tràm, sông Sài Gòn và khu trung tâm thành phố. Nếu bạn cần bản vẽ layout chi tiết, bảng giá cập nhật hoặc tư vấn chọn căn theo nhu cầu, hãy liên hệ ViProperty – đơn vị tư vấn chuyên về Eco Green Sài Gòn, sẵn sàng hỗ trợ bạn nhanh chóng, chính xác và chuyên nghiệp.